- Accueil
- Immobilier neuf
- Immobilier neuf Nord-Pas-de-Calais
- Immobilier neuf Lille - Nos programmes neufs à Lille
- Appartement neuf 3 pièces Lille




- Transport en communMobilité
- Loi PINELDéfiscalisation
- VerdoyantEnvironnement
Moins d'impôts dès cette année !
Jusqu'à 17,5% de réduction d'impôts sur le montant investi avec la Loi Pinel
- 10,5% sur 6 ans de location
- 15% sur 9 ans de location
- 17,5% sur 12 ans de location
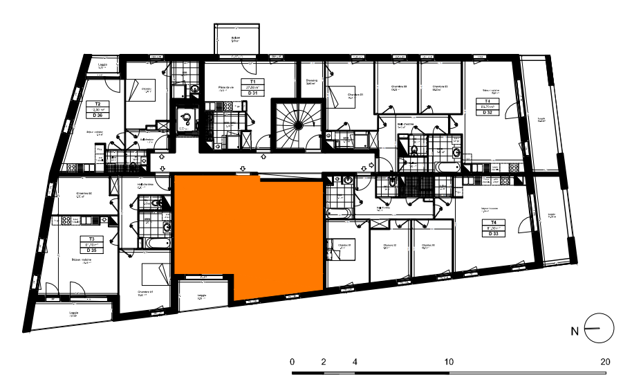
Description du bien
Défiscalisez une partie de votre imposition en investissant dans un appartement neuf, avec la loi PINEL.
Ce T3 est situé dans une résidence proche de Ronchin. La livraison est prévue sur le 1er trimestre 2019.
Les appartements de la résidence possèdent un balcon avec une suprenante vue sur l'immense campus du lycée faidherbe et ses stades. La résidence comprend 85 logements du T1 au T4, des stationnements en sous-sol. Les menuiseries sont en PVC, au sol, carrelage pour les pièces humides, et parquet pour le reste.
Proche des écoles, des lycées, du métro et même de la gare de la porte de Douai, le futur locataire aura tout à disposition pour faciliter son quotidien.
Localisation
La ville de Lille
Lille, surnommée la « capitale des Hauts-de-France », se positionne fièrement en tant que quatrième métropole française. Située sur un axe stratégique crucial, elle se situe au carrefour international de Paris, Bruxelles et Londres, ce qui en fait une ville particulièrement dynamique tant sur le plan économique que culturel. Au cœur de cette métropole, Euralille, son quartier d’affaires, se hisse au troisième rang national, juste après La Défense à Paris et la Part-Dieu à Lyon, témoignant ainsi d’un essor économique remarquable.
Lille a su, au fil du temps, sublimer son statut de simple ville industrielle pour se développer en une destination touristique de plus en plus populaire. Avec ses jolies façades colorées inspirées de l’architecture flamande et ses petites rues pavées, Lille affirme son identité comme une « Ville d’Art et d’Histoire » et dispose d’une vie culturelle particulièrement effervescente tout au long de l’année. Entre autres, le plus grand festival consacré exclusivement aux séries du monde s’y tient chaque année depuis 2028. Mais aussi de nombreux concerts et événements directement dans les rues de Lille ou dans les nombreux lieux culturels de la Capitale des Flandres. Son couronnement en tant que Capitale Européenne de la Culture en 2004 ne fait que souligner son importance dans le paysage culturel européen. La ville dispose d’un grand nombre de monuments majestueux, de musées et de salles de spectacles vibrantes, attirant aussi bien les locaux que les touristes de passage à Lille.
Pourquoi investir à Lille ?
Lille : une destination de choix pour les étudiants et les investisseurs
En pleine expansion démographique, Lille attire de très nombreux étudiants notamment pour son dynamisme, sa modernité et son environnement accueillant et chaleureux. Seule, l’université de Lille accueille plus de 80 000 étudiants, et cela ne prend pas en compte toutes les écoles privées de la capitale des Flandres. Il y a donc là un très fort potentiel locatif, avec une demande très forte et en constante évolution, ce qui est un beau motivateur pour tout investisseur en quête d’un projet d’investissement fructueux.
Une situation géographique avantageuse
Située au cœur d'un triangle de force, composé de Paris, Londres et Bruxelles, la ville de Lille profite d’une situation particulièrement avantageuse en Europe ce qui lui offre plusieurs avantages.
- Une accessibilité internationale : Située à seulement une heure de train de Paris, 35 minutes de Bruxelles et un heure de Londres, la métropole lilloise constitue un point de convergence idéal pour les voyageurs d'affaires, les touristes et les étudiants internationaux.
- Un flux constant de visiteurs : cette proximité avec des grandes métropoles telles que Londres, Bruxelles et Paris garantit un flux régulier et constant de visiteurs ou de résidents potentiels. Ainsi la location saisonnière ou ponctuelle de ses biens est assurée tout au long de l’année.
Un cadre de vie agréable et dynamique
Lille offre un cadre de vie particulièrement plaisant. La ville regorge de choses intéressantes à découvrir, avec une scène culturelle animée, des infrastructures modernes, et un environnement qui favorise l’épanouissement tant sur le plan professionnel que personnel.
Cette qualité de vie attire non seulement les locataires, mais aussi les investisseurs soucieux de valoriser leur patrimoine dans un environnement attractif et en constante évolution.
Des opportunités de défiscalisation
Plusieurs dispositifs permettent aujourd’hui de défiscaliser en tant qu’investisseur, que ce soit dans l’immobilier neuf ou l’immobilier ancien. Lille étant en zone Pinel A, elle est éligible au dispositif Pinel qui permet justement de profiter d’une réduction d’impôt pour l’achat d’un appartement neuf, destiné à la location. La loi Malraux quant à elle, fonctionne sur le même principe mais concerne cette fois les biens anciens si l’on y fait un certain nombre de travaux de rénovation.
En conclusion, investir dans l'immobilier à Lille offre bien plus que la simple perspective de générer un revenu locatif intéressant. En plus de bénéficier d'un flux constant de demande locative grâce à la forte attractivité de la ville, les investisseurs ont également la possibilité de profiter de divers dispositifs de défiscalisation tels que la loi Pinel ou la loi Malraux offrant chacun des avantages fiscaux significatifs et permettant aux investisseurs de réduire leur impôt sur le revenu tout en constituant un patrimoine immobilier solide.
Composants du bien
Description
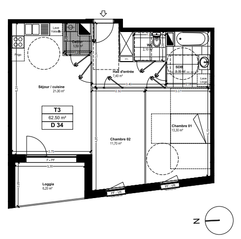
Cet appartement de 62,5 m2 est situé au 3ème étage avec ascenseur.
Il comprend :
- 1 hall
- 1 séjour/cuisine
- 2 belles chambres
- 1 salle de bain équipée
- 1 WC sparé
- 1 cellier
- 1 balcon de 6m²
- 1 place de parking en sous-sol
Chiffres clés
Assurances optionnelles disponibles
| Assurance dégradation | |
| Assurance loyer impayé | |
| Assurance logement vacant |
Répartition des charges
| Propriétaire | Locataire | |
|---|---|---|
| Gros travaux | ||
| Menus travaux | ||
| Taxe foncière | ||
| Charges de copropriété | ||
| Assurance de copropriété | ||
| Enlèvement des ordures ménagères | ||
| Assurance propriétaire non occupant |
Équipe

DP2M Immobilier
Gestion locative
Actualités
Aucune actualité renseignée pour ce programme immobilier.
Catégories
- Appartement
- Neuf
Documents
Liens utiles
Partage
Cette fiche à vocation informative n'est pas contractuelle, les données présentées sur cette fiche sont le résultat de l'agrégation d'un ensemble de documents d'informations financières. En conséquence, les chiffres et prix indiqués dans cette fiche n'ont qu'une valeur indicative et ne sauraient constituer en aucune manière des valeurs garanties de la part de Dividom.