- Accueil
- Immobilier neuf
- Immobilier neuf Nord-Pas-de-Calais
- Immobilier neuf Lille - Nos programmes neufs à Lille
- Appartement neuf 4 pièces Lille




- Transports en communMobilité
- T4 NeufType de logement
- Proche centre-villeEmplacement
Moins d'impôts dès cette année !
Jusqu'à 17,5% de réduction d'impôts sur le montant investi avec la Loi Pinel
- 10,5% sur 6 ans de location
- 15% sur 9 ans de location
- 17,5% sur 12 ans de location
Description du bien
Défiscalisez votre imposition à l'aide d'un appartement T4 neuf à Lille.
Sa livraison est prévue pour la fin 2018 ce qui aura un impact sur votre imposition à partir de 2018.
Situé près du Parc Jean-Baptiste Lebas et du quartier Saint Michel, la position de ce T4 permet une proximité avec tout ce qui est necessaire au quotidien. Écoles, commerces, marchés, stations V'Lille, métro... Cela offre une vraie vie au sein du quartier.
La résidence comprend 72 logements de T1 à T4, avec balcons, et stationnements. Son architecture grise anthracite, élégante et moderne plait à tous les habitants, son exposition Est-Ouest permet d'avoir les rayons du soleil en partant et en revenant du travail.
Localisation
La ville de Lille
Lille, surnommée la « capitale des Hauts-de-France », se positionne fièrement en tant que quatrième métropole française. Située sur un axe stratégique crucial, elle se situe au carrefour international de Paris, Bruxelles et Londres, ce qui en fait une ville particulièrement dynamique tant sur le plan économique que culturel. Au cœur de cette métropole, Euralille, son quartier d’affaires, se hisse au troisième rang national, juste après La Défense à Paris et la Part-Dieu à Lyon, témoignant ainsi d’un essor économique remarquable.
Lille a su, au fil du temps, sublimer son statut de simple ville industrielle pour se développer en une destination touristique de plus en plus populaire. Avec ses jolies façades colorées inspirées de l’architecture flamande et ses petites rues pavées, Lille affirme son identité comme une « Ville d’Art et d’Histoire » et dispose d’une vie culturelle particulièrement effervescente tout au long de l’année. Entre autres, le plus grand festival consacré exclusivement aux séries du monde s’y tient chaque année depuis 2028. Mais aussi de nombreux concerts et événements directement dans les rues de Lille ou dans les nombreux lieux culturels de la Capitale des Flandres. Son couronnement en tant que Capitale Européenne de la Culture en 2004 ne fait que souligner son importance dans le paysage culturel européen. La ville dispose d’un grand nombre de monuments majestueux, de musées et de salles de spectacles vibrantes, attirant aussi bien les locaux que les touristes de passage à Lille.
Pourquoi investir à Lille ?
Lille : une destination de choix pour les étudiants et les investisseurs
En pleine expansion démographique, Lille attire de très nombreux étudiants notamment pour son dynamisme, sa modernité et son environnement accueillant et chaleureux. Seule, l’université de Lille accueille plus de 80 000 étudiants, et cela ne prend pas en compte toutes les écoles privées de la capitale des Flandres. Il y a donc là un très fort potentiel locatif, avec une demande très forte et en constante évolution, ce qui est un beau motivateur pour tout investisseur en quête d’un projet d’investissement fructueux.
Une situation géographique avantageuse
Située au cœur d'un triangle de force, composé de Paris, Londres et Bruxelles, la ville de Lille profite d’une situation particulièrement avantageuse en Europe ce qui lui offre plusieurs avantages.
- Une accessibilité internationale : Située à seulement une heure de train de Paris, 35 minutes de Bruxelles et un heure de Londres, la métropole lilloise constitue un point de convergence idéal pour les voyageurs d'affaires, les touristes et les étudiants internationaux.
- Un flux constant de visiteurs : cette proximité avec des grandes métropoles telles que Londres, Bruxelles et Paris garantit un flux régulier et constant de visiteurs ou de résidents potentiels. Ainsi la location saisonnière ou ponctuelle de ses biens est assurée tout au long de l’année.
Un cadre de vie agréable et dynamique
Lille offre un cadre de vie particulièrement plaisant. La ville regorge de choses intéressantes à découvrir, avec une scène culturelle animée, des infrastructures modernes, et un environnement qui favorise l’épanouissement tant sur le plan professionnel que personnel.
Cette qualité de vie attire non seulement les locataires, mais aussi les investisseurs soucieux de valoriser leur patrimoine dans un environnement attractif et en constante évolution.
Des opportunités de défiscalisation
Plusieurs dispositifs permettent aujourd’hui de défiscaliser en tant qu’investisseur, que ce soit dans l’immobilier neuf ou l’immobilier ancien. Lille étant en zone Pinel A, elle est éligible au dispositif Pinel qui permet justement de profiter d’une réduction d’impôt pour l’achat d’un appartement neuf, destiné à la location. La loi Malraux quant à elle, fonctionne sur le même principe mais concerne cette fois les biens anciens si l’on y fait un certain nombre de travaux de rénovation.
En conclusion, investir dans l'immobilier à Lille offre bien plus que la simple perspective de générer un revenu locatif intéressant. En plus de bénéficier d'un flux constant de demande locative grâce à la forte attractivité de la ville, les investisseurs ont également la possibilité de profiter de divers dispositifs de défiscalisation tels que la loi Pinel ou la loi Malraux offrant chacun des avantages fiscaux significatifs et permettant aux investisseurs de réduire leur impôt sur le revenu tout en constituant un patrimoine immobilier solide.
Composants du bien
Description
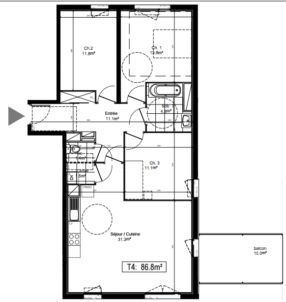
Cet appartement situé au 1er étage avec ascenseur et est exposé Est-Ouest. Il dispose d'une surface habitable de 86,60 m2 et comprend :
- 1 entrée
- 1 séjour / cuisine
- 1 salle de bain
- 3 chambres
- 1 WC séparé
- 1 cellier
- 1 balcon
Menuiseries en PVC, carrelage dans la salle d'eau et parquet dans les autres pièces. Chauffage individuel au gaz.
Résidence fermée et sécurisée par visiophone. Place de parking.
Chiffres clés
Assurances optionnelles disponibles
| Assurance dégradation | |
| Assurance loyer impayé | |
| Assurance logement vacant |
Répartition des charges
| Propriétaire | Locataire | |
|---|---|---|
| Gros travaux | ||
| Menus travaux | ||
| Taxe foncière | ||
| Charges de copropriété | ||
| Assurance de copropriété | ||
| Enlèvement des ordures ménagères | ||
| Assurance propriétaire non occupant |
Équipe

DP2M Immobilier
Gestion locative
Actualités
Aucune actualité renseignée pour ce programme immobilier.
Catégories
- Appartement
- Neuf
Documents
Liens utiles
Partage
Cette fiche à vocation informative n'est pas contractuelle, les données présentées sur cette fiche sont le résultat de l'agrégation d'un ensemble de documents d'informations financières. En conséquence, les chiffres et prix indiqués dans cette fiche n'ont qu'une valeur indicative et ne sauraient constituer en aucune manière des valeurs garanties de la part de Dividom.