Éligible Pinel

Appartement neuf T2 Tourcoing (Vendu)

Tourcoing, 59200

  • Loi PINEL
    Défiscalisation
  • Elégante
    Architecture
  • T2 neuf
    Type d'appartement

Moins d'impôts dès cette année !

Jusqu'à 17,5% de réduction d'impôts sur le montant investi avec la Loi Pinel

  • 10,5% sur 6 ans de location
  • 15% sur 9 ans de location
  • 17,5% sur 12 ans de location

Description du bien

Défiscalisez votre imposition en investissant dans un appartement neuf à Tourcoing.

La livraison de ce T2 est prévue sur le 4ème trimestre 2018.

Sa position géographique lui est favorable, par sa distance avec Lille (dizaine de kilomètres) et sa proximité avec la capitale.

La résidence se trouve près du centre-ville de Tourcoing et bénéficie de son dynamisme. Plusieurs théâtres, salle de concert, musées constituent le charme de la ville.

L'architecure est unique, optant pour une résidence moderne, atypique mais élégante. Les vues de chaque appartement sont imprenables, soit sur l'eau des rives ou sur le pont hydraulique.

La demande locative est assez élevée et Tourcoing reste un bon potentiel de plus-value.

Localisation

La ville de Tourcoing

 

Située dans les Hauts-de-France, la ville de Tourcoing forme avec Lille et Roubaix une zone de rencontre où de nombreuses personnes affluent. Peuplée de 98 000 habitants, Tourcoing est la troisième ville la plus peuplée des HdF derrière Lille et Amiens.

La bourgade est agréable de part son implantation au bord de petits ruisseaux et possède un charme historique avec un patrimoine de briques rouges intéressant.
La ville participe également au dynamisme régional à travers son réseau de transport mais surtout sa gare qui relie une bonne partie de la France (notamment  DisneyLand Paris en moins de 2h). L’accès aux grands axes autoroutier se fait en quelques minutes et le centre-ville de Lille est accessible en moins de 10min via la ligne de métro.

Riche de son histoire et de son patrimoine industriel textile, Tourcoing est une ville d’élan et de grands projets qui cultive un environnement permettant au plus grand nombre de s’épanouir et d’entreprendre.

 

Pourquoi investir à Tourcoing ?

La ville de Tourcoing avance et évolue de manière fulgurante. De nombreuses entreprises viennent s’y implanter et le centre ville de dynamisme de jour en jour.
Cette évolution s’effectue tout en gardant les racines historiques qui ont fait (et font) la force majeur de la ville.
De nombreux espaces verts et logements fleurissent au centre-bourg et aux alentours, permettant à la ville d’attirer des résidents désireux d’avoir un petit bout de campagne en pleine ville.
Par ce changement de situation, Tourcoing est une des villes les plus rentables du Nord, avec une rentabilité brute d’environ 8%! Le prix du marché du marché immobilier en baisse et une demande locative importante offrent d’excellente opportunités pour votre futur investissement

 

 

Tourcoing se trouve en zone b1 de la loi Pinel. La ville est donc éligible à la réduction d’impôts qu’offre le dispositif pinel. Investir dans l’immobilier neuf à Tourcoing est donc recommandé si vous souhaitez réaliser un investissement locatif et ainsi vous constituer un patrimoine. Devenez propriétaire d’un logement neuf pour réduire vos impôts. 

La ville propose une offre constituée de logements neufs ou anciens dans le centre-ville.  Tourcoing vise une réelle redynamisation de son territoire, l’offre dans le neuf est donc grandissante. 

Composants du bien

Description

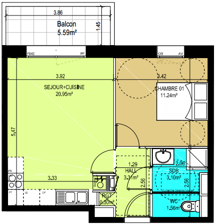
Cet appartement de 2 pièces principales de 46,4 m2 est situé au premier étage avec ascenseur.

Il comprend :

  • 1 hall
  • 1 séjour/cuisine
  • 1 chambre
  • 1 salle de bain
  • 1 WC séparé
  • 1 espace de rangement
  • 1 balcon de 5,59 m2

Ce T2 dispose également d'une place de parking en sous-sol.

Résidence sécurisée, grandes baies vitrées pour une luminosité optimale, domotique intégrée.

Chiffres clés

Surface habitable46,4 m²
46,4 m² loi Carrez
Loyer annuelVous devez être pour voir cette information
Charges locativesVous devez être pour voir cette information

Assurances optionnelles disponibles

Assurance dégradation
Assurance loyer impayé
Assurance logement vacant

Répartition des charges

PropriétaireLocataire
Gros travaux
Menus travaux
Taxe foncière
Charges de copropriété
Assurance de copropriété
Enlèvement des ordures ménagères
Assurance propriétaire non occupant

Équipe

DP2M Immobilier

DP2M Immobilier

Gestion locative

Actualités

Aucune actualité renseignée pour ce programme immobilier.

Cette fiche à vocation informative n'est pas contractuelle, les données présentées sur cette fiche sont le résultat de l'agrégation d'un ensemble de documents d'informations financières. En conséquence, les chiffres et prix indiqués dans cette fiche n'ont qu'une valeur indicative et ne sauraient constituer en aucune manière des valeurs garanties de la part de Dividom.