Éligible Pinel

Appartement neuf T3 Amiens (Vendu)

Amiens,

  • Double orientation
    Exposition
  • Ressourçant
    Environnement
  • Centre-ville
    Emplacement

Moins d'impôts dès cette année !

Jusqu'à 17,5% de réduction d'impôts sur le montant investi avec la Loi Pinel

  • 10,5% sur 6 ans de location
  • 15% sur 9 ans de location
  • 17,5% sur 12 ans de location

Description du bien

Dividom vous propose d'investir dans un appartement T3 neuf à Amiens.

La construction a déja commencé. La date de livraison de l'appartement est prévue sur le 4ème trimestre 2018 et aura donc un impact fiscal sur les revenus de 2018.

Situé dans une résidence construite au bord d'un parc, elle bénéficie de son environnement ressourçant par la nature qui l'entoure. Sa proximité avec le centre-ville facilite le quotidien : axe routier / école de commerce / transport.

Ce nouveau programme d'habitation permet un confort pour les habitants. Les appartements possèdent un volume agréable pour optimiser votre confort. La double exposition permet une luminosité optimale.

Localisation

La ville de Amiens

Ville située dans le département de la Somme et dans la région Hauts-de-France. Amiens est la 28ème ville de France avec ses 135 000 habitants et la 2ème ville la plus peuplée de la région après Lille. La ville d’Amiens est située dans le triangle Paris-Londres-Bruxelles. Elle est notamment connu pour sa célèbre cathédrale Notre-Dame qui est inscrite au patrimoine mondial de l’UNESCO, mais également pour ses hortillonnages , il s’agit d’un ensemble de jardins flottants sur 65 km de canaux et 300 hectars.

 

La ville est dynamique de part ses festivals (festival international du film d'Amiens, le festival international de jazz, celui des arts de la rue et le festival de BD d'Amiens…), ses infrastructures culturelles.

Ville peuplée d’étudiants, elle a reçu le titres de la ville la plus sportive en 2001, car elle bénéficie de multiples équipements sportifs. 

En terme de transport, la ville est bien desservie d’une part par des axes autoroutiers proches (A1, A16 et A29) qui permet de rejoindre par exemple Lille (143 km) ou Paris (150 km). Amiens dispose également d’un aéroport, d’une gare TGV, un  réseau de bus ainsi qu’un service de vélos.

 

Pourquoi investir à Amiens ?

Investir dans un logement à Amiens peut être très avantageux. En effet, la ville est appréciée pour ses qualités environnementales, son patrimoine culturel et historique, et ses écoles. La ville dispose de grandes écoles et universités qui regroupe environ 28 000 étudiants. Ce sont alors autant d’étudiants qui recherchent des logements à louer et vous assurent des revenus locatifs.  La demande locative y est alors très forte. Beaucoup d’investisseurs privilégient alors la location meublée ou des résidences-services.

Amiens est donc une ville avantageuse au niveau culturels, économiques ou encore touristiques, c’est une ville où il fait bon vivre et où le cadre de vie est apprécié.

Pour investir dans l’immobilier neuf, vous avez du choix car la ville ne cesse de se dynamiser et de construire ou reconstruire des résidences ou quartiers comme :

Résidence Arcania

La fin de cette construction est prévue pour Septembre 2020, onze logements neufs, des maisons individuelles avec garage est à prix très attractif. La raison de ce prix est dûe au fait qu’il s’agisse d’un projet en accession sociale situé dans un quartier prioritaire.

Les futurs acquéreurs bénéficieront d’aides spécifiques comme 400€ par m2, 10 000€ de l’Agence nationale pour la rénovation urbaine, un taux de TVA réduite de 5,5 % ainsi qu’une exonération de la taxe foncière pendant quinze ans.

Quartier Renancourt

Les travaux en cours de ce quartier résidentiel prévoit 250 à 300 logements neufs, dans un quartier attractif et bien connecté. Les maisons respectent alors la nouvelle réglementation thermique, avec une performance énergétique favorable. Pour la construction d’une maison neuve, la garantie décennale couvre votre logement jusqu’à 10 ans après la remise des clés. 

 

Enfin, pour 2022, la ville investit dans la construction une nouvelle médiathèque de 1085 mètre carré.

Les biens immobiliers de la villes sont composés de 36% de maisons pour 64% d’appartements, avec des superficies variés,  il y a environ 20% de 2, 3, 4 et 5 pièces ou plus et 13% de une pièce. 

 

Composants du bien

Description

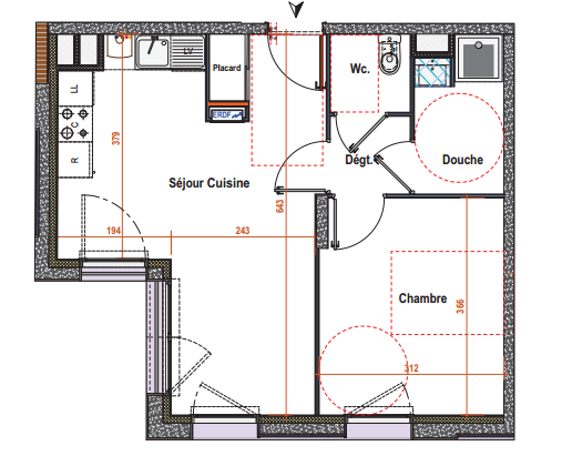
Appartement T3, situé au rez-de-chaussée et exposé sud.

Il comprend :

  • 1 entrée
  • 1 grand séjour / cuisine
  • 2 chambres
  • 1 salle de bain carrelée et meublée, vasque avec miroir, baignoire ou douche, spots à leds et sèche serviette
  • 1 WC séparé
  • 1 cellier
  • 1 terrasse de 16m²
  • 1 place de parking

Placards aménagés, larges baies vitrées en pièces de vie favorisant un ensoleillement maximal, volets roulants motorisés dans toutes les chambres.

Jardin à usage privatif. Accès sécurisé à la résidence par vidéophone ou visiophone.

Porte d’entrée des appartements anti-effraction.

Chiffres clés

Surface habitable66,7 m²
66,7 m² loi Carrez
Loyer annuelVous devez être pour voir cette information
Charges locativesVous devez être pour voir cette information

Assurances optionnelles disponibles

Assurance dégradation
Assurance loyer impayé
Assurance logement vacant

Répartition des charges

PropriétaireLocataire
Gros travaux
Menus travaux
Taxe foncière
Charges de copropriété
Assurance de copropriété
Enlèvement des ordures ménagères
Assurance propriétaire non occupant

Équipe

Aucun membre d'équipe renseigné pour ce programme immobilier.

Actualités

Aucune actualité renseignée pour ce programme immobilier.

Cette fiche à vocation informative n'est pas contractuelle, les données présentées sur cette fiche sont le résultat de l'agrégation d'un ensemble de documents d'informations financières. En conséquence, les chiffres et prix indiqués dans cette fiche n'ont qu'une valeur indicative et ne sauraient constituer en aucune manière des valeurs garanties de la part de Dividom.