Éligible Pinel



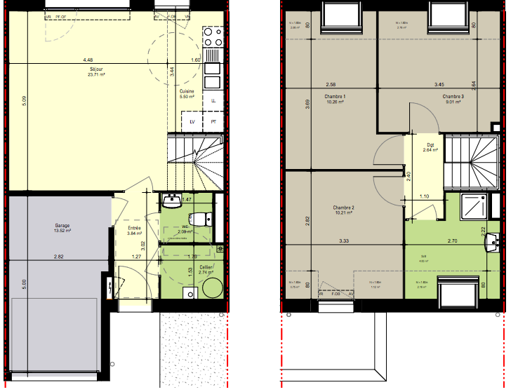
- Jardin et GarageAnnexes
- 2 places de parkingStationnement
- Loi PINELFiscalité
Moins d'impôts dès cette année !
Jusqu'à 17,5% de réduction d'impôts sur le montant investi avec la Loi Pinel
- 10,5% sur 6 ans de location
- 15% sur 9 ans de location
- 17,5% sur 12 ans de location
Description du bien
Localisation
Composants du bien
Équipe

DP2M Immobilier
Gestion locative
Actualités
Aucune actualité renseignée pour ce programme immobilier.
Catégories
- Neuf
Documents
Liens utiles
Partage
Cette fiche à vocation informative n'est pas contractuelle, les données présentées sur cette fiche sont le résultat de l'agrégation d'un ensemble de documents d'informations financières. En conséquence, les chiffres et prix indiqués dans cette fiche n'ont qu'une valeur indicative et ne sauraient constituer en aucune manière des valeurs garanties de la part de Dividom.